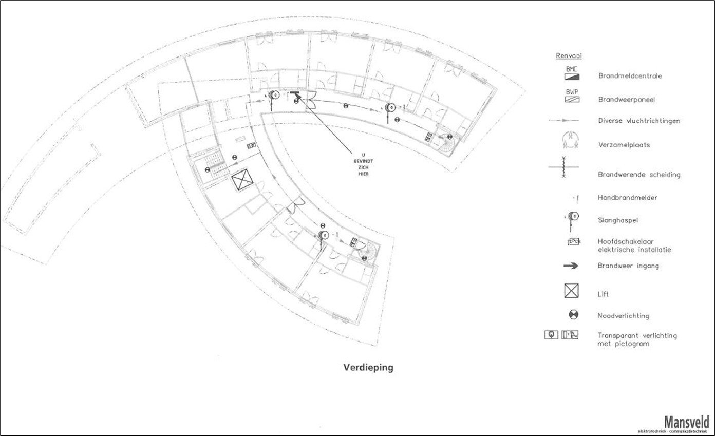
Waar vind je de nooduitgangen?
Op elke verdieping aan het einde van de gang bevindt zich een nooduitgang. Hier kun je altijd naar buiten. Ze zijn duidelijk gemarkeerd en mogen niet worden geblokkeerd.
Scan de QR-code
Scan hieronder de QR-code om de link op je telefoon te openen.

